drag and drop site creator

Безопасная ставка

Проект включает в себя различные параметры, которые позволяют с уверенностью сказать: уникальное расположение, современный и смелый проект, и тесные экономические предложения.

Mobirise

Лучший проект для привилегированной

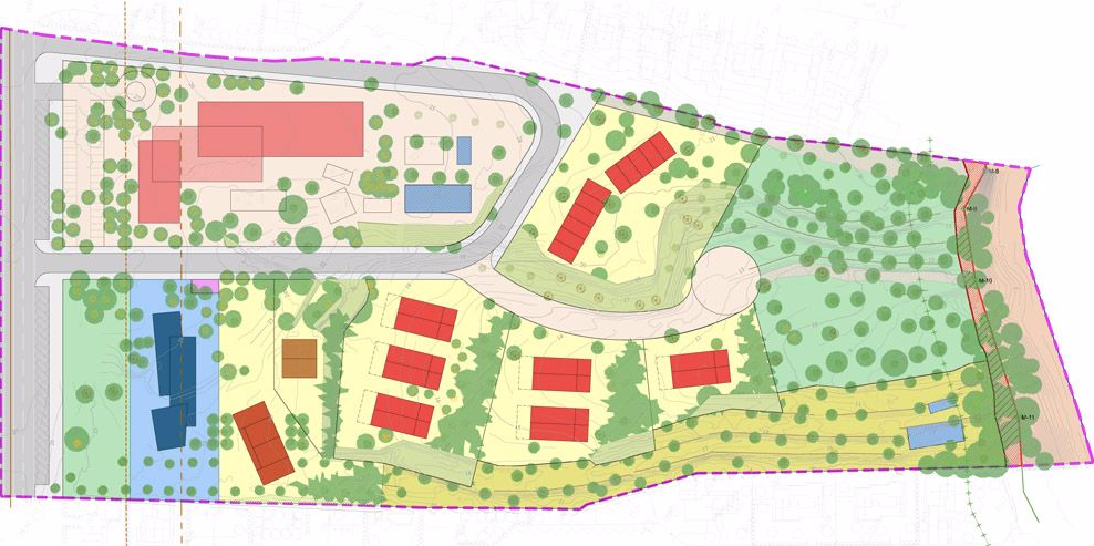
Исчезновение древнего лагеря открыл дверь для реализации уникального проекта в уникальном месте, которое будет включать жилые районы, государственного жилья и гостиничных номеров. Расположенный в Ampolla, "двери Дельта" в районе самое большое богатство и природные paisagística Проект курорта Cap Roig природы не только защищает, но власть перейти к одной из главных достопримечательностей жилой проект.

Частичное управление проектом Плана сектор развивается Z-6 "Camping Cap Roig" планового освоения земель, это частичный план был включен в старом Генеральном плане муниципального образования.

Сектора, который занимает площадь в 55,107.79 м2 земли, представляет собой участок земли с небольшим существующего здания в связи с использованием своего старого кемпинга, полностью определяется физическими барьерами и области ограничена на север вдоль улицы Cap Roig и железной дороги, и на юг на море. По бокам восток и запад, площадь окружена городскими консолидированной. Это ограничение было установлено последовательно с территории, природные и искусственные барьеры и границы владений.

Mobirise

Поверхности и потолков


Общая урбанизируемая площадь 55.107,79 m2

Площадь, годная для урбанизации 50.807,42 m2

Застройка: 0,20 m2 лимит/м2 пл.

Застройка гостиничного предназначения 0,10 m2 лимит/м2 пл.

Застройка жилищного предназначения 0,10 m2 лимит/м2 пл.

Максимальный лимит 10.161,48 m2 лимит

Лимит гостиничной застройки 5.080,74 m2

Лимит жилищной застройки 5.080,74 m2

Плотность 10 кв /гек.

Максимальное число квартир 50 квартир


Минимальные уступки, предназначенные для систем 

Дороги 8.264,38 m2

Зеленое пространство 7.204,74 m2

Оборудование 2.540,87 m2